Next
Next

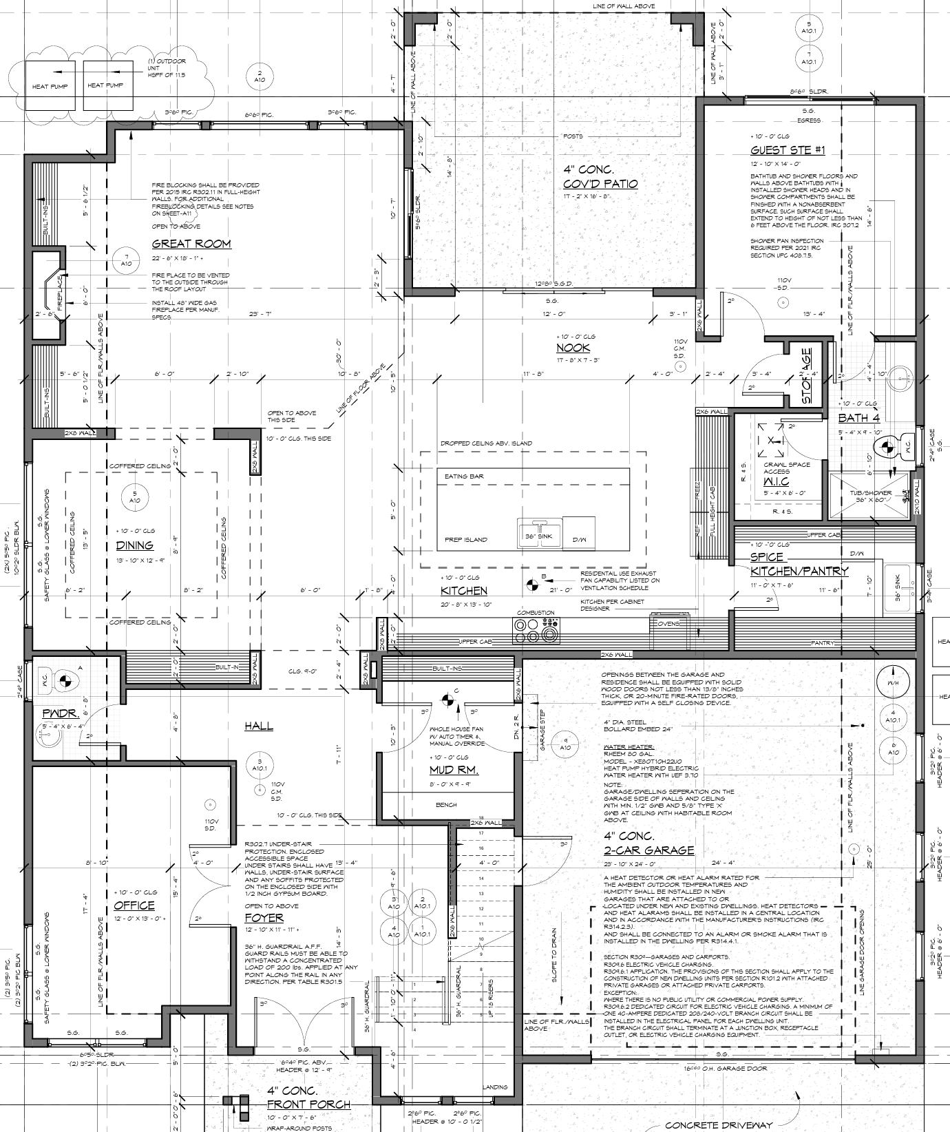
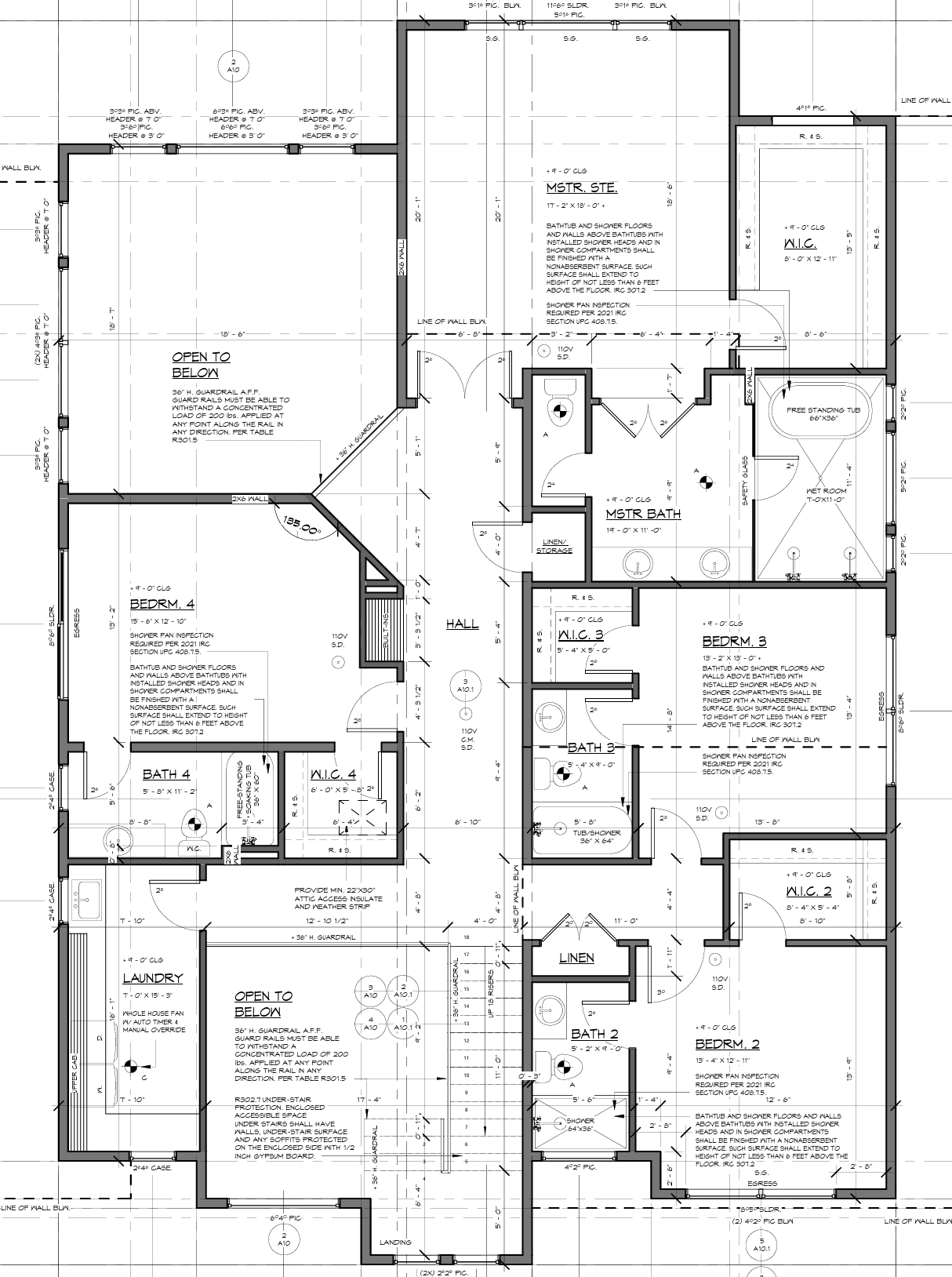
Eastgate Project II